Площадь, м²
202
Стоимость, руб. в месяц
363 600
Ставка, руб./м² в год
21 600

Контакты

  • Компания БЦИнформ
  • Телефон +7 931 208 ••• Показать

Если вам не удалось дозвониться до собственника в нерабочее время, вы можете заказать обратный звонок.

Заказать обратный звонок

Описание офиса

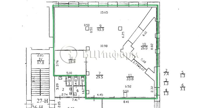
Вниманию арендаторов предлагается помещение площадью 202 кв.м. под офисную деятельность.
Расположено на втором этаже Бизнес-Центра.
Смешанная планировка: зона "Open space" + две комнаты (в том числе помещение под кухню).
В хорошем состоянии. Выполнена качественная офисная отделка. Стены - покраска, подвесные потолки "Армстронг".
Помещение оснащено приточно-вытяжной вентиляцией. Установлены кондиционеры.
Отопление в сезон и электроэнергия оплачиваются дополнительно.
Арендная ставка с учетом НДС 5%
Круглосуточное администрирование здания, столовая, служба эксплуатации.
Близость к 2м станциям метро - Обводный канал и Лиговский проспект.
Готово к въезду потенциального арендатора. Договор аренды напрямую с собственником. Без скрытых комиссий и платежей.

Контакты

  • Компания БЦИнформ
  • Телефон +7 931 208 ••• Показать

Если вам не удалось дозвониться до собственника в нерабочее время, вы можете заказать обратный звонок.

Заказать обратный звонок

Параметры офиса

  • Площадь 202 м²
  • Стоимость 363 600 руб. в месяц
  • Ставка 21 600 руб./м² в год
  • Этаж 2-й из 7
  • Ремонт, состояние помещения хороший ремонт
  • Объект бизнес-центр «Призма-центр»
  • Класс БЦ B+
  • Объявление от 16 мая 2026 04:30

Расположение офиса в бизнес-центре на карте

Санкт-Петербург, Воронежская улица, 5на картепоказать панораму

Пользователи часто ищут...

Похожие предложения по аренде офисов 

Поможем подобрать помещение бесплатно

Румфи.ру подберет вам офис от собственника. Мы не агентство, это бесплатно и без комиссии.

 Подробнее 

Популярные бизнес-центры

бизнес-центр «Санкт-Петербург Плаза» - превью
5 фото

Бизнес-центр, класс A

Санкт-Петербург Плаза

реализуемые площади от 146 до 28 643 м²

Санкт-Петербург, Малоохтинский проспект, 64А
Новочеркасская580 м

Бизнес-центр Санкт-Петербург Плаза представляет собой офисное здание класса А. Общая площадь комплекса составляет 104...

+7 812 944 •• ••
торгово-офисный центр «Эврика» - превью
5 фото

Торгово-офисный центр, класс B+

Эврика

реализуемые площади от 18 м²

Санкт-Петербург, улица Седова, 11А
Елизаровская1.3 км

Предлагаем вам обратить внимание на торгово-офисный центр Эврика, который отличается от подобных объектов...

+7 812 333 •• ••
бизнес-центр «Преображенский двор» - превью
7 фото

Бизнес-центр, класс A

Преображенский двор

реализуемые площади от 45 до 3 000 м²

Санкт-Петербург, Литейный проспект, 26
Чернышевская670 м

Многофункциональный комплекс торгово-офисных помещений «Преображенский Двор» — воплощение изысканного стиля и комфорта.

+7 812 648 •• ••
бизнес-центр «Ленинский» - превью
11 фото

Бизнес-центр, класс B+

Ленинский

реализуемые площади от 30 до 77 м²

Санкт-Петербург, Ленинский проспект, 153
Московская980 м

Бизнес-центр «Ленинский» - это одиннадцатиэтажное современное здание, относящееся к классу «В+», расположенное в...

+7 812 335 •• ••
бизнес-центр «Выборгская 49» - превью
1 фото

Бизнес-центр, класс B

Выборгская 49

реализуемые площади по запросу

Санкт-Петербург, Выборгская набережная, 49
Выборгская1 км

Поблизости проходят Лесной проспект и Выборгская набережная.

+7 812 612 •• ••
бизнес-центр «Елизаровский» - превью
1 фото

Бизнес-центр, класс C

Елизаровский

реализуемые площади по запросу

Санкт-Петербург, проспект Елизарова, 38
Елизаровская1 км

БЦ располагается в Невском районе Санкт-Петербурга.

+7 812 365 •• ••
  Найти по названиюВсе бизнес-центры