Площадь, м²
96
Стоимость, руб. в месяц
153 600
Ставка, руб./м² в год
19 200

Контакты

  • Компания БЦИнформ
  • Телефон +7 812 640 ••• Показать

Если вам не удалось дозвониться до собственника в нерабочее время, вы можете заказать обратный звонок.

Заказать обратный звонок

Описание офиса

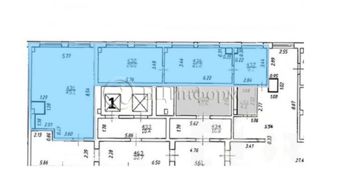
Предлагается в аренду офисный блок, общей площадью - 96 м.кв.
Расположен на седьмом этаже.
Кабинетная планировка, состоит из 4 кабинетов.
В хорошем состоянии. Произведена стандартная отделка. Для каждого нового арендатора осуществляется косметический ремонт помещения (стены, напольное покрытие, потолок) под требования и пожелания резидента, в течение 3-5 дней).
Оснащено приточно-вытяжной вентиляцией.
В пешей доступности находится станция метро "Пролетарская".
Готово к въезду потенциального арендатора. Договор аренды осуществляется напрямую с собственником. Без скрытых платежей и комиссий.

Контакты

  • Компания БЦИнформ
  • Телефон +7 812 640 ••• Показать

Если вам не удалось дозвониться до собственника в нерабочее время, вы можете заказать обратный звонок.

Заказать обратный звонок

Параметры офиса

  • Площадь 96 м²
  • Стоимость 153 600 руб. в месяц
  • Ставка 19 200 руб./м² в год
  • Этаж 7-й из 7
  • Ремонт, состояние помещения хороший ремонт
  • Объект бизнес-центр
  • Класс БЦ B
  • Объявление от 19 апреля 2026 04:30

Расположение офиса в бизнес-центре на карте

Санкт-Петербург, проспект Обуховской Обороны, 120Бна картепоказать панораму

Пользователи часто ищут...

Похожие предложения по аренде офисов 

Поможем подобрать помещение бесплатно

Румфи.ру подберет вам офис от собственника. Мы не агентство, это бесплатно и без комиссии.

 Подробнее 

Популярные бизнес-центры

бизнес-центр «Московский, 212» - превью
1 фото

Бизнес-центр, класс B

Московский, 212

реализуемые площади по запросу

Санкт-Петербург, Московский проспект, 212
Московская480 м

Бизнес-центр «Московский, 212» расположен на пересечении Московского и Ленинского проспектов. Бизнес-центр расположился...

+7 812 303 •• ••
бизнес-центр «Санкт-Петербург Плаза» - превью
5 фото

Бизнес-центр, класс A

Санкт-Петербург Плаза

реализуемые площади от 146 до 28 643 м²

Санкт-Петербург, Малоохтинский проспект, 64А
Новочеркасская580 м

Бизнес-центр Санкт-Петербург Плаза представляет собой офисное здание класса А. Общая площадь комплекса составляет 104...

+7 812 944 •• ••
бизнес-центр «Елизаровский» - превью
1 фото

Бизнес-центр, класс C

Елизаровский

реализуемые площади по запросу

Санкт-Петербург, проспект Елизарова, 38
Елизаровская1 км

БЦ располагается в Невском районе Санкт-Петербурга.

+7 812 365 •• ••
бизнес-центр «Преображенский двор» - превью
7 фото

Бизнес-центр, класс A

Преображенский двор

реализуемые площади от 45 до 3 000 м²

Санкт-Петербург, Литейный проспект, 26
Чернышевская670 м

Многофункциональный комплекс торгово-офисных помещений «Преображенский Двор» — воплощение изысканного стиля и комфорта.

+7 812 648 •• ••
бизнес-центр «Ленинский» - превью
11 фото

Бизнес-центр, класс B+

Ленинский

реализуемые площади от 30 до 77 м²

Санкт-Петербург, Ленинский проспект, 153
Московская980 м

Бизнес-центр «Ленинский» - это одиннадцатиэтажное современное здание, относящееся к классу «В+», расположенное в...

+7 812 335 •• ••
бизнес-центр «Балтийский Порт» - превью
5 фото

Бизнес-центр, класс B+

Балтийский Порт

реализуемые площади от 6 до 2 000 м²

Санкт-Петербург, улица Маршала Говорова, 49
Нарвская850 м

БЦ «Балтийский порт». Презентабельный объект коммерческой недвижимости возглавляет список бизнес-центров Кировского...

Связаться
  Найти по названиюВсе бизнес-центры