Площадь, м²
35.9
Стоимость, руб. в месяц
46 670
Ставка, руб./м² в год
15 600

Контакты

  • Компания БЦИнформ
  • Телефон +7 931 208 ••• Показать

Если вам не удалось дозвониться до собственника в нерабочее время, вы можете заказать обратный звонок.

Заказать обратный звонок

Описание офиса

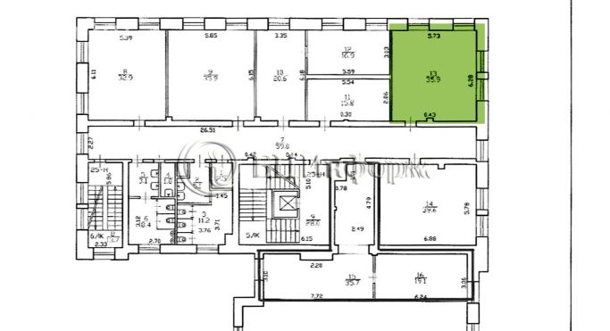
В аренду предлагается помещение под офис, площадь - 35.9 м.кв.
Расположено на седьмом этаже.
Кабинет открытой планировки. В хорошем состоянии.
Выполнена качественная офисная отделка: потолок "Армстронг", стены - покраска.
Здание оснащено всеми необходимыми коммуникациями, в том числе системой приточно-вытяжной вентиляции и кондиционирования.
Действует электронный контроль доступа.
В пешей доступности станции м."Электросила" и "Московские Ворота".

Готово к въезду. Договор аренды напрямую с собственником. Без скрытых комиссий и платежей.

Контакты

  • Компания БЦИнформ
  • Телефон +7 931 208 ••• Показать

Если вам не удалось дозвониться до собственника в нерабочее время, вы можете заказать обратный звонок.

Заказать обратный звонок

Параметры офиса

  • Площадь 35.9 м²
  • Стоимость 46 670 руб. в месяц
  • Ставка 15 600 руб./м² в год
  • Этаж 7-й из 8
  • Ремонт, состояние помещения хороший ремонт
  • Объект бизнес-центр
  • Класс БЦ B
  • Объявление от 16 апреля 2026 04:30

Расположение офиса в бизнес-центре на карте

Санкт-Петербург, Московский проспект, 143на картепоказать панораму

Пользователи часто ищут...

Похожие предложения по аренде офисов 

Поможем подобрать помещение бесплатно

Румфи.ру подберет вам офис от собственника. Мы не агентство, это бесплатно и без комиссии.

 Подробнее 

Популярные бизнес-центры

бизнес-центр «Преображенский двор» - превью
7 фото

Бизнес-центр, класс A

Преображенский двор

реализуемые площади от 45 до 3 000 м²

Санкт-Петербург, Литейный проспект, 26
Чернышевская670 м

Многофункциональный комплекс торгово-офисных помещений «Преображенский Двор» — воплощение изысканного стиля и комфорта.

+7 812 648 •• ••
бизнес-центр «Тринити» - превью
1 фото

Бизнес-центр, класс A

Тринити

реализуемые площади от 200 м²

Санкт-Петербург, набережная Адмирала Лазарева, 20
Чкаловская840 м

Тринити Плейс — проект комплексной застройки городского квартала, разработанный группой ведущих международных...

+7 812 313 •• ••
бизнес-центр «Санкт-Петербург Плаза» - превью
5 фото

Бизнес-центр, класс A

Санкт-Петербург Плаза

реализуемые площади от 146 до 28 643 м²

Санкт-Петербург, Малоохтинский проспект, 64А
Новочеркасская580 м

Бизнес-центр Санкт-Петербург Плаза представляет собой офисное здание класса А. Общая площадь комплекса составляет 104...

+7 812 944 •• ••
бизнес-центр «Московский, 212» - превью
3 фото

Бизнес-центр, класс B

Московский, 212

реализуемые площади по запросу

Санкт-Петербург, Московский проспект, 212
Московская480 м

+7 812 303 •• ••
торгово-офисный центр «Эврика» - превью
5 фото

Торгово-офисный центр, класс B+

Эврика

реализуемые площади от 18 м²

Санкт-Петербург, улица Седова, 11А
Елизаровская1.3 км

Предлагаем вам обратить внимание на торгово-офисный центр Эврика, который отличается от подобных объектов...

+7 812 333 •• ••
бизнес-центр «Ленинский» - превью
11 фото

Бизнес-центр, класс B+

Ленинский

реализуемые площади от 30 до 77 м²

Санкт-Петербург, Ленинский проспект, 153
Московская980 м

Бизнес-центр «Ленинский» - это одиннадцатиэтажное современное здание, относящееся к классу «В+», расположенное в...

+7 812 335 •• ••
  Найти по названиюВсе бизнес-центры