Площадь, м²
85.12
Стоимость, руб. в месяц
170 240
Ставка, руб./м² в год
24 000

Контакты

  • Компания БЦИнформ
  • Телефон +7 931 208 ••• Показать

Если вам не удалось дозвониться до собственника в нерабочее время, вы можете заказать обратный звонок.

Заказать обратный звонок

Описание офиса

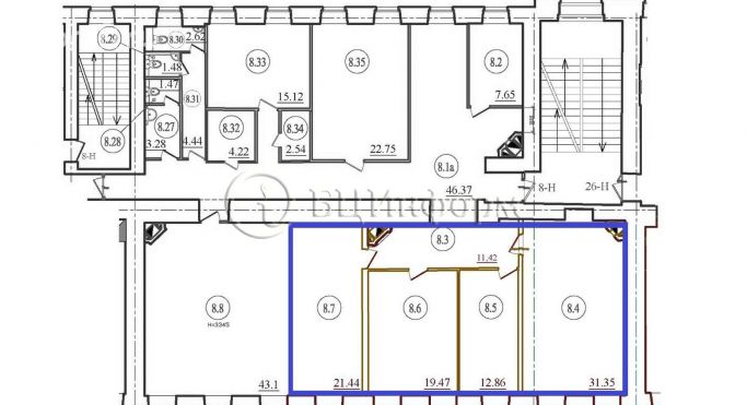
Вниманию арендаторов предлагается офисный блок, площадью 85.12 м.кв.
Располагается на пятом этаже.
Кабинетная планировка: холл + четыре комнаты.
В хорошем состоянии. Выполнена стандартная офисная отделка: подвесные потолки "Армстронг", стены - покраска.
В пешей доступности (8 минут) от станций метро "Чкаловская", "Спортивная".

Готово к въезду потенциального арендатора. Договор аренды напрямую с собственником. Без скрытых комиссий и платежей.

Контакты

  • Компания БЦИнформ
  • Телефон +7 931 208 ••• Показать

Если вам не удалось дозвониться до собственника в нерабочее время, вы можете заказать обратный звонок.

Заказать обратный звонок

Параметры офиса

  • Площадь 85.12 м²
  • Стоимость 170 240 руб. в месяц
  • Ставка 24 000 руб./м² в год
  • Этаж 5-й из 5
  • Ремонт, состояние помещения хороший ремонт
  • Объект бизнес-центр «Дом Колобовых»
  • Класс БЦ C
  • Объявление от 30 апреля 2026 04:30

Расположение офиса в бизнес-центре на карте

Санкт-Петербург, Большой проспект Петроградской стороны, 18на картепоказать панораму

Пользователи часто ищут...

Похожие предложения по аренде офисов 

Поможем подобрать помещение бесплатно

Румфи.ру подберет вам офис от собственника. Мы не агентство, это бесплатно и без комиссии.

 Подробнее 

Популярные бизнес-центры

бизнес-центр «Московский, 212» - превью
3 фото

Бизнес-центр, класс B

Московский, 212

реализуемые площади по запросу

Санкт-Петербург, Московский проспект, 212
Московская480 м

+7 812 303 •• ••
бизнес-центр «Тринити» - превью
1 фото

Бизнес-центр, класс A

Тринити

реализуемые площади от 200 м²

Санкт-Петербург, набережная Адмирала Лазарева, 20
Чкаловская840 м

Тринити Плейс — проект комплексной застройки городского квартала, разработанный группой ведущих международных...

+7 812 313 •• ••
бизнес-центр «Преображенский двор» - превью
7 фото

Бизнес-центр, класс A

Преображенский двор

реализуемые площади от 45 до 3 000 м²

Санкт-Петербург, Литейный проспект, 26
Чернышевская670 м

Многофункциональный комплекс торгово-офисных помещений «Преображенский Двор» — воплощение изысканного стиля и комфорта.

+7 812 648 •• ••
бизнес-центр «Балтийский Порт» - превью
5 фото

Бизнес-центр, класс B+

Балтийский Порт

реализуемые площади от 6 до 2 000 м²

Санкт-Петербург, улица Маршала Говорова, 49
Нарвская850 м

БЦ «Балтийский порт». Презентабельный объект коммерческой недвижимости возглавляет список бизнес-центров Кировского...

Связаться
торгово-офисный центр «Эврика» - превью
5 фото

Торгово-офисный центр, класс B+

Эврика

реализуемые площади от 18 м²

Санкт-Петербург, улица Седова, 11А
Елизаровская1.3 км

Предлагаем вам обратить внимание на торгово-офисный центр Эврика, который отличается от подобных объектов...

+7 812 333 •• ••
бизнес-центр «Выборгская 49» - превью
1 фото

Бизнес-центр, класс B

Выборгская 49

реализуемые площади по запросу

Санкт-Петербург, Выборгская набережная, 49
Выборгская1 км

Поблизости проходят Лесной проспект и Выборгская набережная.

+7 812 612 •• ••
  Найти по названиюВсе бизнес-центры