Площадь, м²
94
Стоимость, руб. в месяц
141 000
Ставка, руб./м² в год
18 000

Контакты

  • Компания БЦИнформ
  • Телефон +7 931 208 ••• Показать

Если вам не удалось дозвониться до собственника в нерабочее время, вы можете заказать обратный звонок.

Заказать обратный звонок

Описание торгового помещения

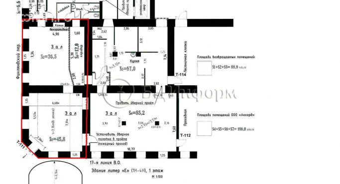
В аренду предлагается помещение свободного назначения общей площадью - 94 м.кв.
Расположено на первом этаже. Отдельный вход с улицы.
Помещение состоит из двух залов 45.8 и 36.5 кв.м. Санузел.
Назначение: офис, магазин, кафе.
Помещение с отделкой. В хорошем состоянии. В отделке используются элементы кирпича.
Оснащено системой приточно-вытяжной вентиляции. Установлен кондиционер.
В пешей доступности находится станция метро "Василеостровская".

Готово к въезду арендатора. Договор аренды напрямую с собственником. Без скрытых комиссий и платежей.

Контакты

  • Компания БЦИнформ
  • Телефон +7 931 208 ••• Показать

Если вам не удалось дозвониться до собственника в нерабочее время, вы можете заказать обратный звонок.

Заказать обратный звонок

Параметры торгового помещения

  • Площадь 94 м²
  • Стоимость 141 000 руб. в месяц
  • Ставка 18 000 руб./м² в год
  • Этаж 1-й из 5
  • Ремонт, состояние помещения хороший ремонт
  • Объект бизнес-центр «Ситилинк»
  • Объявление от 13 мая 2026 04:30

Расположение торгового помещения в бизнес-центре на карте

Санкт-Петербург, 17-я линия Васильевского острова, 4-6Ена картепоказать панораму

Пользователи часто ищут...

Похожие предложения по аренде торговых помещений 

Поможем подобрать помещение бесплатно

Румфи.ру подберет вам торговое помещение от собственника. Мы не агентство, это бесплатно и без комиссии.

 Подробнее 

Популярные торговые центры и ЖК с коммерческими помещениями

торговый центр «Лидер» - превью
1 фото

Торговый центр, масштаб окружной

Лидер

реализуемые площади по запросу

Санкт-Петербург, Гаккелевская улица, 34
Комендантский Проспект230 м

Комплекс ориентирован на потребительские предпочтения жителей. В магазине представлены разнообразные отделы женской и...

+7 812 602 •• ••
торгово-развлекательный центр «ТРК Ульянка» - превью
2 фото

Торгово-развлекательный центр, масштаб районный

ТРК Ульянка

реализуемые площади от 25 до 200 м²

Санкт-Петербург, проспект Ветеранов, 101
Проспект Ветеранов2.7 км

Хорошая экология - соседство с лесопарком «Александрино», Полежаевским парком и речкой Новой, активная застройка района...

+7 812 380 •• ••
торгово-развлекательный центр «Крыша» - превью
1 фото

Торгово-развлекательный центр, масштаб районный

Крыша

реализуемые площади по запросу

Санкт-Петербург, проспект Просвещения, 66
Проспект Просвещения2.3 км

«Крыша» — это новый развлекательный центр, удачно расположенный на севере Санкт-Петербурга — на пересечении проспектов...

+7 812 558 •• ••
аутлет-центр Fashion House - превью
3 фото

Аутлет-центр, масштаб суперрегиональный

Fashion House

реализуемые площади по запросу

Санкт-Петербург, Таллинское шоссе

Расположенный на окраине второго по величине города в России, аутлет-центр FASHION HOUSE в Санкт-Петербурге призван...

+7 495 258 •• ••
торгово-развлекательный центр «Китай город» - превью
2 фото

Торгово-развлекательный центр, масштаб окружной

Китай город

реализуемые площади по запросу

Санкт-Петербург, посёлок Парголово, Выборгское шоссе, 503к1А

ТК «Китай город» - уникальное торговое пространство, в котором разместились китайские производители и продавцы. Этот...

Связаться
торговый центр «Центр интерьерных решений Villa» - превью
4 фото

Торговый центр, масштаб окружной

Центр интерьерных решений Villa

реализуемые площади по запросу

Санкт-Петербург, улица Савушкина, 119к3
Старая Деревня1.6 км

Центр интерьерных решений Villa создан в результате реконцепции бывшего ТЦ «Подсолнух». Общая площадь комплекса...

Связаться
  Найти по названиюВсе торговые центрыВсе ЖК